logo

บริษัท สลิม.เทค จำกัด (Slim.tech Company Limited) ได้ดำเนินการในปี พ.ศ.2540 และได้จดทะเบียนเป็นรูปแบบ บริษัทจำกัดเมื่อปี พ.ศ.2543 ด้วยทุนจดทะเบียน 10,000,000 บาทโดยมีวัตถุประสงค์ในการดำเนินธุรกิจผู้ผลิตและจำหน่ายติดตั้งม่าน (Blinds) ที่มากด้วยคุณภาพไม่ว่าจะเป็นวัตถุดิบที่ได้มาตรฐานโดยสินค้านำ เข้าจากต่างประเทศต่างๆ

0-2063 3218, 063-215 2917, 085-829 4466 slimtech_2@hotmail.com

APL Logistics

HomeAPL Logistics

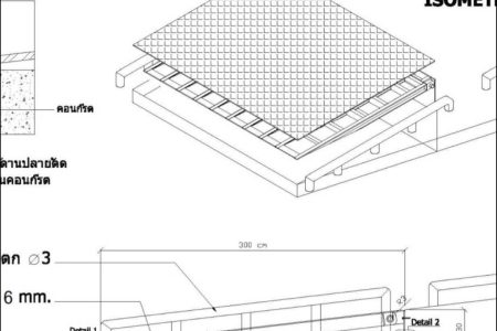
รูปบรรยากาศการทำงานต่างๆร่วมกับบริษัท APL Logistics

รวบรวมบรรยากาศการทำงานตั้งแต่การเข้าเยี่ยมชมบริษัท slimtech, การประชุม, รวมไปถึงรูปบรรยากาศหน้างาน